平面优化草图(热门经典分享第3篇草图快速记录思考)

平面优化草图(热门经典分享第3篇草图快速记录思考)

adminqwq 2025-12-23 信息披露 32 次浏览 0个评论

第3篇:涉及到钻石切割法的一些思路和应用。一张平面空间要像珍惜钻石一样,注重每一处空间细节,不能随意浪费空间资源。在规划设计之前要有很慎密的整体计划资源分配方式和比例。再运用熟练的成功定式,小心每一个细节,在空间中做到分毫必争。关于具体的方法应用,大家通过图片的方案思路自行体会。

由于图片较多,信息量较大。建议收藏文章后慢慢欣赏。图片只是通过顺序整理汇总,并无准确的逻辑顺序,读者根据自身的理解消化和吸收。

如果觉得内容不错,欢迎点赞和分享。持续关注后续更新。为避免错过更多精彩资料,建议读者关注后收藏订阅并点击星标,避免错过精彩内容。

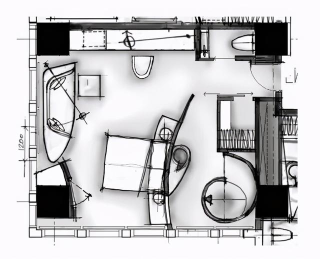
01

客房书桌与床的关系讨论

热门经典分享第3篇:《草图》快速记录思考,表达设计理念

02

一个客房空间的设计手法讨论;海螺弧形元素在空间中的应用,方案概念的引入打造一个客房空间。设计通过人文地理切入点,抽取海螺的形象标志,融入到平面和空间概念中。

热门经典分享第3篇:《草图》快速记录思考,表达设计理念

热门经典分享第3篇:《草图》快速记录思考,表达设计理念

热门经典分享第3篇:《草图》快速记录思考,表达设计理念

热门经典分享第3篇:《草图》快速记录思考,表达设计理念

热门经典分享第3篇:《草图》快速记录思考,表达设计理念

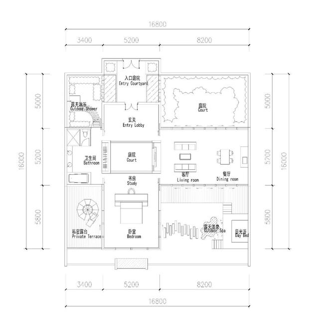
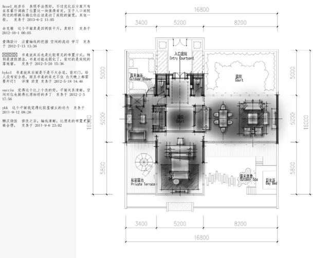
03

别墅空间的平面优化,数位板的比例控制讨论。

热门经典分享第3篇:《草图》快速记录思考,表达设计理念

热门经典分享第3篇:《草图》快速记录思考,表达设计理念

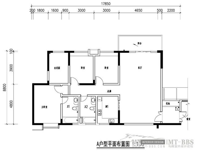
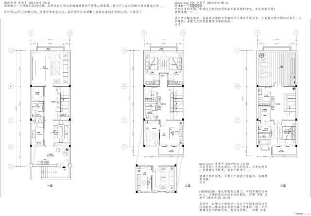
04

一套住宅的平面优缺点分析、平面空间分析;提供一个平面方案优化思路,优化后的功能亮点提炼。在原有平面功能基础上如何提升空间层次。

热门经典分享第3篇:《草图》快速记录思考,表达设计理念

热门经典分享第3篇:《草图》快速记录思考,表达设计理念

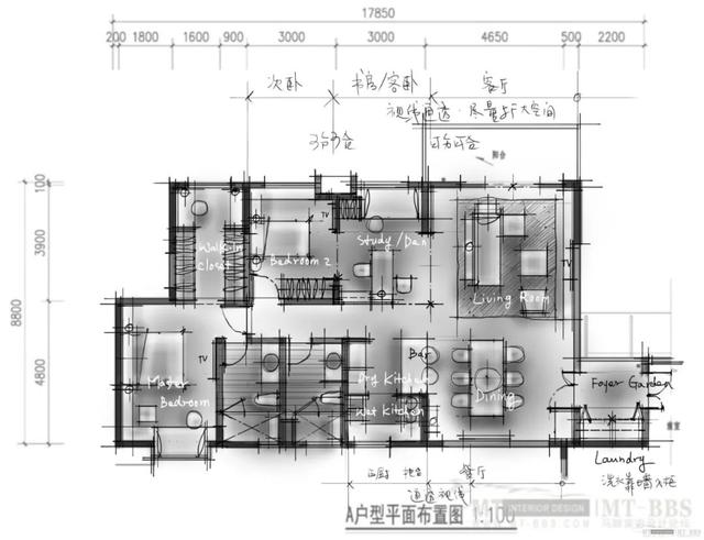
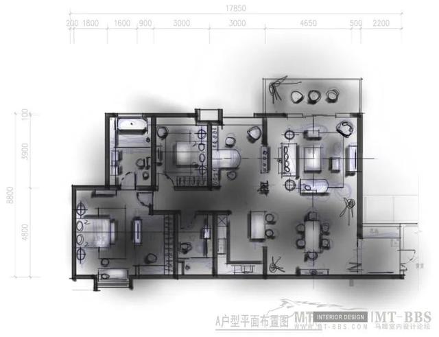
05

平面优化讨论

热门经典分享第3篇:《草图》快速记录思考,表达设计理念

热门经典分享第3篇:《草图》快速记录思考,表达设计理念

热门经典分享第3篇:《草图》快速记录思考,表达设计理念

热门经典分享第3篇:《草图》快速记录思考,表达设计理念

06

一个酒店套房的案例分析,通过原有平面分析空间的优缺点。柱子对空间的影响,空间的观赏中心、趣味中心在哪里。如何去思考和优化。进一步优化提升现有空间平面。从草图的设计概念到思想的转化,思考对空间的理解。

热门经典分享第3篇:《草图》快速记录思考,表达设计理念

热门经典分享第3篇:《草图》快速记录思考,表达设计理念

热门经典分享第3篇:《草图》快速记录思考,表达设计理念

热门经典分享第3篇:《草图》快速记录思考,表达设计理念

热门经典分享第3篇:《草图》快速记录思考,表达设计理念

07

热门经典分享第3篇:《草图》快速记录思考,表达设计理念

热门经典分享第3篇:《草图》快速记录思考,表达设计理念

热门经典分享第3篇:《草图》快速记录思考,表达设计理念

08

钻石切割法or围棋钻石切割法

热门经典分享第3篇:《草图》快速记录思考,表达设计理念

09

会所平面的一些方案思路,如何去切割一张大空间平面。

热门经典分享第3篇:《草图》快速记录思考,表达设计理念

热门经典分享第3篇:《草图》快速记录思考,表达设计理念

10

通过一张餐厅的平面优化,了解钻石分割,如何去切分一个空间。不只是比例,每一件事就是分析每块原石的优缺点,优点变亮点,缺点变趣点。

1.尽量利用外侧难得的自然光线

2.靠里面的暗空间利用展示厨房

3.保持入口对客人的吸引进入

热门经典分享第3篇:《草图》快速记录思考,表达设计理念

热门经典分享第3篇:《草图》快速记录思考,表达设计理念

11

热门经典分享第3篇:《草图》快速记录思考,表达设计理念

12

一套住宅的平面优化思路

热门经典分享第3篇:《草图》快速记录思考,表达设计理念

热门经典分享第3篇:《草图》快速记录思考,表达设计理念

热门经典分享第3篇:《草图》快速记录思考,表达设计理念

热门经典分享第3篇:《草图》快速记录思考,表达设计理念

热门经典分享第3篇:《草图》快速记录思考,表达设计理念

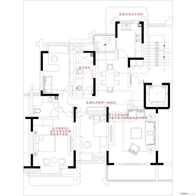
13

一套住宅的优缺点问题分析,空间的浪费情况。如何去优化,如何考虑钻石分割法。提供一个平面优化思路。

热门经典分享第3篇:《草图》快速记录思考,表达设计理念

热门经典分享第3篇:《草图》快速记录思考,表达设计理念

14

一个客房的方案思路,挑战更多的功能性。尝试解决具体问题,如何把空间做得更加敞开,扩大视觉进深。

热门经典分享第3篇:《草图》快速记录思考,表达设计理念

热门经典分享第3篇:《草图》快速记录思考,表达设计理念

热门经典分享第3篇:《草图》快速记录思考,表达设计理念

15

一个住宅的优化的手稿和思考思路

热门经典分享第3篇:《草图》快速记录思考,表达设计理念

热门经典分享第3篇:《草图》快速记录思考,表达设计理念

16

继续更新住宅的优化思路,如何通过加强轴线关系梳理空间。把空间的仪式感打造得更加有层次。

热门经典分享第3篇:《草图》快速记录思考,表达设计理念

热门经典分享第3篇:《草图》快速记录思考,表达设计理念

17

平面功能优化的思路分享

热门经典分享第3篇:《草图》快速记录思考,表达设计理念

热门经典分享第3篇:《草图》快速记录思考,表达设计理念

18

酒店大堂平面的优化

热门经典分享第3篇:《草图》快速记录思考,表达设计理念

热门经典分享第3篇:《草图》快速记录思考,表达设计理念

热门经典分享第3篇:《草图》快速记录思考,表达设计理念

热门经典分享第3篇:《草图》快速记录思考,表达设计理念

热门经典分享第3篇:《草图》快速记录思考,表达设计理念

本篇03分享到此结束,01和02篇请查看往期分享:点击下方链接

热门经典分享第1篇:《草图》快速记录思考,表达设计理念

热门经典分享第2篇:《草图》快速记录思考,表达设计理念

04篇后续持续更新。

更多精彩后续持续更新中,

建议收藏文章、点赞订阅。

如果觉得不错

感谢分享到你的朋友圈

您的点赞和评论是我们持续更新的动力!觉得文章不错欢迎点赞和评论!

本资料声明:

1.本文为设计技术分析,仅供欣赏学习。

2.文中部分图片均摘自互联网

3.因编辑需要,文字和图片无必然联系,仅供读者参考;

往期精彩文章推荐!更多精彩请关注平台!

探秘上亿元顶级豪宅深圳湾1号的空间网红喜欢打卡的热门地标上篇

改善性住宅如何打造提升空间的品味和格局?新中式风格如何设计

高端住宅开发商金茂的项目上叠叠层别墅如何打造颜值空间

转载请注明来自海坡下载,本文标题:《平面优化草图(热门经典分享第3篇草图快速记录思考)》

每一天,每一秒,你所做的决定都会改变你的人生!

发表评论

快捷回复:

评论列表 (暂无评论,32人围观)参与讨论

还没有评论,来说两句吧...