
甘肃兰州王家现代别墅面宽 15.0米 进深 9.5米建筑面积230.0㎡

总平面示意图基地情况:东:斜巷+邻居西:斜巷+邻居南:村内道路北:邻家住宅

一层平面图建筑主体建设在宅基地院内西侧,一层采用4开间的形式,东西两侧空间采取动静分区的方式,东侧安排基本的餐厨客厅等公共空间;西侧排布三间卧室满足居住所需。其中,西南侧的主卧搭配衣帽间、私卫和阳台,居住体验极佳。

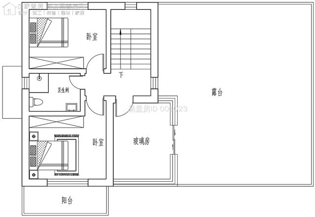
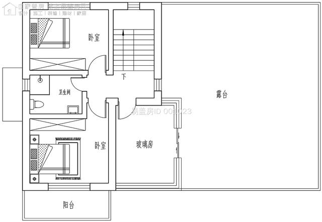
二层平面图二层空间依然沿用一层的分区思路,西侧部分增设两间卧室和一间阳光房,东侧设置大面积露台,既可以观景,也可用于室外休闲、聚会烧烤等活动,作为庭院室外空间的补充。

建筑整体为现代风格,设计师采用经典的平屋顶搭配框架线条装饰手法,营造出简洁利落的视觉效果。转角窗的运用搭配木材质框架,与阳光房的木架顶棚搭配形成整体立面装饰的点睛之笔。

材质方面,设计师采用浅色调真石漆搭配当地的淡黄色外墙涂料与原木材质形成对比。

既使建筑更好地融入于村内整体风貌环境,也使得整体的效果更具温馨感。

阳光房与屋顶露台有机搭配,功能互补的同时也使得建筑的室外空间得以扩充,既可在欢聚时享受丰富的休闲活动,也能在疲惫时休憩身心,静看风起云涌。

院门部分采用门斗,影壁部分采用现代化风格半墙,方孔洞使得内部空间若隐若现,保护院落隐私的同时也增加了外观的趣味性。

东立面图

西立面图

南立面图

北立面图
转载请注明来自海坡下载,本文标题:《甘肃别墅图纸网站建设(每日农村建房图集甘肃15m×95m现代别墅)》
京公网安备11000000000001号
京ICP备11000001号
还没有评论,来说两句吧...