300大平层户型优化(总有一款符合你的要求)

300大平层户型优化(总有一款符合你的要求)

adminqwq 2025-12-20 社会资讯 30 次浏览 0个评论

“平面方案规划从走心为起点,进入方案分析,突破固有思维,从实用性,功能性,落地性全面思考,多角度构思,进入全方位表达,追求快速优化、全案落地” 这些你会吗?

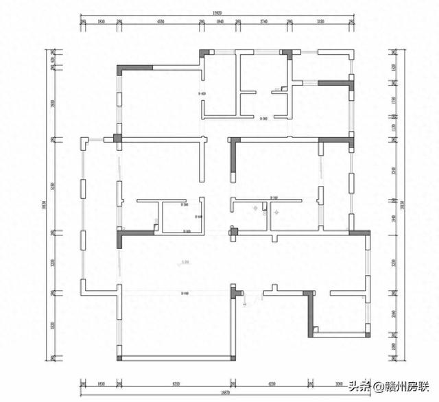
原始平面图

总有一款符合你的要求,300㎡的大平层找了10个大师做设计方案

不同类型的客户人群,做出不同的方案!

每一套方案 都值得认真学习,思考...

根据巴厘岛风格做出相应的平面方案总有一款符合你的要求,300㎡的大平层找了10个大师做设计方案

从霸道总裁的业主出发,做出平面方案!总有一款符合你的要求,300㎡的大平层找了10个大师做设计方案

仓井风,哈哈 苍老师 你懂的...不多说 请细品...总有一款符合你的要求,300㎡的大平层找了10个大师做设计方案

根据迪拜土豪,高要求做出的平面方案!总有一款符合你的要求,300㎡的大平层找了10个大师做设计方案

刚需业主人群做出的平面方案!总有一款符合你的要求,300㎡的大平层找了10个大师做设计方案

欧式风格 做出平面方案!总有一款符合你的要求,300㎡的大平层找了10个大师做设计方案

中式风格 做出的平面方案!总有一款符合你的要求,300㎡的大平层找了10个大师做设计方案

现代简洁风格 做出平面方案!总有一款符合你的要求,300㎡的大平层找了10个大师做设计方案

异形风,喜欢一步一景的业主做出的平面方案!总有一款符合你的要求,300㎡的大平层找了10个大师做设计方案

扎哈大师风 平面方案!总有一款符合你的要求,300㎡的大平层找了10个大师做设计方案

转载请注明来自海坡下载,本文标题:《300大平层户型优化(总有一款符合你的要求)》

每一天,每一秒,你所做的决定都会改变你的人生!

发表评论

快捷回复:

评论列表 (暂无评论,30人围观)参与讨论

还没有评论,来说两句吧...