墙柱优化筋(墙柱模板垂直度平整度控制)

墙柱优化筋(墙柱模板垂直度平整度控制)

adminqwq 2025-12-04 社会资讯 28 次浏览 0个评论

一、混凝土墙、柱模板支撑体系的做法和要求

①混凝土墙模板应进行尺寸混凝土墙柱的垂直度、平整度排版,尽量不出现小模板;

②墙板支模时在墙板钢筋下脚水平钢筋和纵向钢筋处焊接模板控制定位筋。

③在立外墙模板时,其模板必须下挂200mm(保证新老混凝土接头处平整度)。

③螺杆洞设置为板底以上第一道至板底≦250mm,顶板以下第一道至顶板≦250mm,其余均匀分布,横向螺杆控制在≦500mm。

④墙模板单面完成后,在钢筋墙板上设置模板限位条,按450mm梅花形放置,注意在模板拼缝处两边加密三道,顶板处一道,中间设二道

⑤在梁与墙之间的墙板用钢管将梁与墙整体夹在一起,防止墙与梁错位。

⑥墙模板的方木长度应从底部到顶部通长;

⑦墙模板的方木按250mm一道均匀分布,两边方木到端部;

⑧墙板柱底部必须要有板条进行加固和止浆措施;

二、混凝土墙柱的垂直度、平整度的测量

1、测量工具、测量方法及允许偏差

测量工具:激光水平仪 、拉尺、靠尺、塞尺。

测量方法:墙柱模板的垂直度用激光水平仪、拉尺进行测量。然后记录顶部、中部及底部位置激光水平仪在拉尺上的数字,作为一组数据。柱子需每个面测一组数据,剪力墙两面需各测三组数据。拆模后,混凝土的垂直度可用靠尺进行测量;混凝土的平整度可用靠尺和塞尺进行测量。

允许偏差:垂直度、平整度≦8mm,如该构件出现偏差≧10mm,则该构件的各组数据均视为不合格。

三、混凝土墙柱垂直度、平整度的控制流程

平整度的控制项目实测实量、分户验收制度严格执行,具体的措施贯彻到整个施工过程当中:

(1)模板安装后,施工单位进行自检,模板平整度控制在8mm之内;

(2)自检并整改合格后,

(3)板拆底模后自检,并把自检数据报送监理;

(4)把模板的测量数据与混凝土的测量数据进行对比、总结;

四、混凝土墙柱垂直度、平整度的控制措施

(1)混凝土墙柱垂直度的控制:模板垂直度的允许偏差为8mm且坚持下小上大的原则;剪力墙两面均需各安装两道斜撑,如剪力墙长度大于3m,则需安装3道斜撑;统一木方尺寸;增加墙柱的钢筋内撑;

墙柱模板垂直度、平整度控制,图文详解

(2)混凝土墙柱平整度的控制:平整度超出允许偏差一般出现在墙与梁交接的地方;在支模板时该部位上部用木方连接墙和梁,中部用木板连接,下部用木方紧压拼缝。

墙柱模板垂直度、平整度控制,图文详解

五、图片展示说明

墙柱模板垂直度、平整度控制,图文详解

混凝土墙端部模板固定体系

作用:控制截面尺寸

做法描述:①两边墙模延长一个方木长,端模板用对拉螺杆固定,此固定方式能有效控制截面尺寸及棱角完整性。

墙柱模板垂直度、平整度控制,图文详解

外侧模梁板固定体系

作用:防渗漏

做法描述:外侧模梁板严禁用铁丝拉

墙柱模板垂直度、平整度控制,图文详解

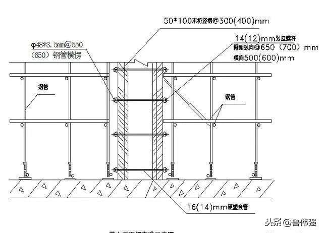
混凝土墙模板固定体系

作用:控制墙垂直度、水平度

做法描述:①第一道至板底≦250mm;中间螺杆控制在≦600mm。

墙柱模板垂直度、平整度控制,图文详解

模板支撑固定体系

作用:控制顶板水平度

做法描述:①较大板跨中间方木应加密。

墙柱模板垂直度、平整度控制,图文详解

混凝土墙端部模板固定体系

作用:控制截面尺寸

做法描述:①墙模板第一根方木在模板端部,以控制阴、阳角。

墙柱模板垂直度、平整度控制,图文详解

混凝土墙模板支撑固定体系

作用:增加模板支撑的整体性

做法描述:①在较大板跨中,采用剪刀撑,以增加模板支撑的整体性。

墙柱模板垂直度、平整度控制,图文详解

混凝土墙端部模板固定体系

作用:控制截面尺寸

做法描述:①两边墙模延长一个方木长,端模板用对拉螺杆固定,此固定方式能有效控制截面尺寸及棱角完整性。

墙柱模板垂直度、平整度控制,图文详解

模板支撑固定体系

作用:控制顶板水平度

做法描述:①在跨度较大板,所有立杆采用双扣件,以防模板扣件下滑。

墙柱模板垂直度、平整度控制,图文详解

混凝土墙板模板固定体系

作用:控制墙垂直度

做法描述:①两皮墙同一端面采用钢管固定,防止混凝土浇筑时,因泵管振动、混凝土振动棒偏位,以保证墙体垂直度

墙柱模板垂直度、平整度控制,图文详解

混凝土墙板模板固定体系

作用:控制墙垂直度

做法描述:①两皮墙之间采用钢管对撑,防止混凝土浇筑时,因泵管振动、混凝土振动棒偏位,以保证墙体垂直度。

墙柱模板垂直度、平整度控制,图文详解

混凝土墙留洞模板固定体系

作用:控制洞口尺寸

做法描述:按照图纸尺寸进行预留。

墙柱模板垂直度、平整度控制,图文详解

剪力墙端头

六、混凝土工程控制流程

墙柱模板垂直度、平整度控制,图文详解

1、做好对班组技术交底工作,楼号长全过程旁站各工序;

2、对照“支撑体系的禁止做法和支撑体系基本要求”逐个自检整改;

3、模板自检验收后,项目部实行全部位实测自检,根据数据再进行整改;

4、重视监理检查验收,把监理提出整改问题落到实处。以弥补项目部自检中的不足之处。

5、加强混凝土浇筑中的旁站作用。

转载请注明来自海坡下载,本文标题:《墙柱优化筋(墙柱模板垂直度平整度控制)》

每一天,每一秒,你所做的决定都会改变你的人生!

发表评论

快捷回复:

评论列表 (暂无评论,28人围观)参与讨论

还没有评论,来说两句吧...