——禾田墅每日分享——
湖南禾田墅 | 长沙禾田墅 | 农村别墅 | 乡村别墅 | 农村自建房 | 湖南别墅 | 新中式别墅 | 欧式别墅 | 美式别墅 | 湖南建房 | 建房公司 | 建筑公司 | 湖南建房公司
对于室内设计来说,平面布局就是灵魂,是设计中最重要的一部分。由于平面方案的差异,即使是同一个户型,最后呈现的效果也可能完全不同。如今客户越来越专业,要求也更高,因此平面优化更显得尤为重要。
为什么要平面户型优化?
现在大家对住所的需要和要求都更高了,按照开发商原有的、简单统一的户型结构,无法满足不同用户的需求。好的户型千篇一律,比如南北通透、分区合理等,差的户型各有千秋,比如采光通风差、奇葩等。
各方面都让人满意的户型实在难得,更何况不同人群需求还不一样,而是室内设计师的作用就在于,通过专业的设计,对平面户型进行优化,既满足居住需求的前提下,也满足美的需求。


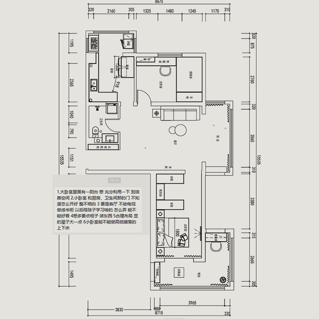
△户型一怎样做好平面户型优化?
一.功能分区
室内平面在最初时最重要的一点就是进行空间功能划分,是后期一切设计的基础,一旦安排不合理,非常容易出现凌乱情况,给后期生活带来很大的麻烦。在进行功能划分时,要考虑到人在空间中的活动,合理的进行动静分区。
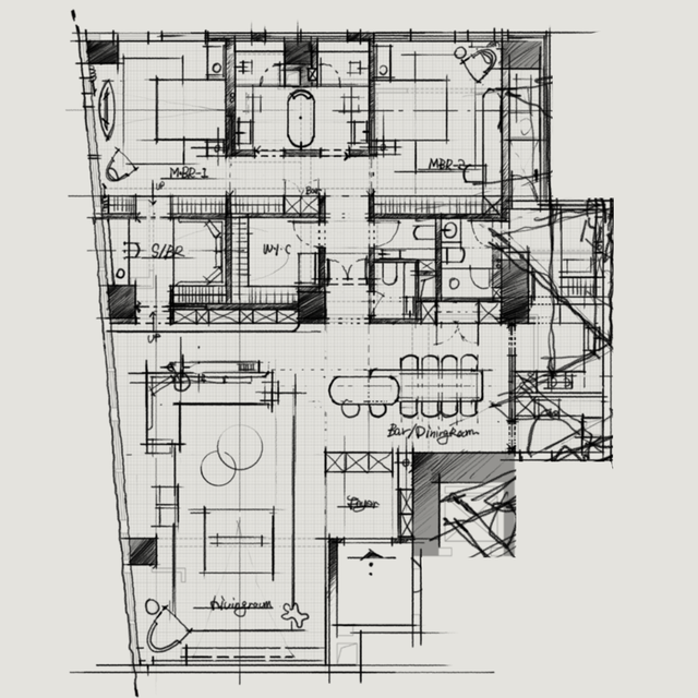
△户型二
△户型三
动静分区可以说约等于公私分区,就是将公共区域和隐私区域分开。将一个分区不合理的户型进行设计,是户型优化的一部分。
△户型四
△户型五
二.动态流线
动线和布局息息相关,不管是一居室、大平层还是别墅,在进行平面规划时,都要根据需求来进行基本功能区域划分,合理规划顺畅的动线。
房间布局或家具布置合不合理看动线就能知道,要注重空间与空间之间的联系。在空间中,经常使用的功能区域动线不流畅会给生活带来很大的麻烦。让空间动线更顺畅,是进行平面优化的重点之一。
△户型六
△户型七
三.人体工程学-尺度
平面布局不是把家具摆进去就行,一定要注重尺度,把握好空间、家具与人的关系。尺度感与人体工程学息息相关,具有尺度感且符合人体工程学的布置才能算得上是好的、让人舒服的平面布置。
同的家具尺寸会给空间带来不同的尺度感,要根据空间及需求选择合适的家具和布置方式。想要平面更优化,合适的尺度是必要的。
△户型八

△户型九四.空间风水、空间分配
需要注意的是方案中是否存在风水禁忌,门冲 、穿膛 各种会产生煞气的空间造型和结构,等等 。
特别是卫生间的位置与门开启的方向尤为重要,每个独立空间的大小在整个平面图中所分配的空间大小是否均匀,比如不能出现厨房比餐厅大 ,餐厅又比客厅大这种不合理的分配。
△户型十
五.家具摆放
家具的摆法 ,首先第一步是看家具摆的是否合理所谓合理就是大小和朝向是否合理动线是否合理,有句话叫设计做到老 ,家具不见得能摆好。
摆家具也是一种艺术同一个空间家具的摆法不同也代表生活方式的不同。

△户型十一六.立面
看平面图如果拉伸出成立体三维空间的时候。有没有美感 ,审美的考虑很重要因为立面造型更多是拿来观赏的。
满足人性心理的一些需求。也就是精神需求,很少承载一些功能上的需求立面的造型不宜过于繁杂 ,也不能过于单调。这正是考验设计师功力的地方。
△户型十二七.整体把握
回到整体, 看看空间是否全面统一,元素风格形式造型和谐统一等等...平面概念方案有没有考虑到与立面的一些呼应 ,立面是否又与顶面有所呼应 ,顶面和地面有没有一些关联
每个空间都应该具备他独有的气质,根据居住者的生活需求不同, 空间营造的氛围也就不相同这需要设计师去反复推敲和研究。设计师应当对每个设计作品都全力以赴,毕竟思考也是一件有趣的事情

转载请注明来自海坡下载,本文标题:《户型平面优化(禾田墅知买了别墅)》
京公网安备11000000000001号
京ICP备11000001号
还没有评论,来说两句吧...