平面方案优化140(这才是做户型优化的正确思路)

平面方案优化140(这才是做户型优化的正确思路)

adminqwq 2025-12-02 社会资讯 20 次浏览 0个评论

平面方案,也叫户型优化,是每个设计师做设计的最开始,也是考验设计师水平能力的重要指标。

不同水平的设计师,做出的方案都是不一样的,有的设计师绞尽脑汁,却总是也想不出好的方案,有的就是平平淡淡,让客户觉得一般般,而有的设计师,方案却做的出奇的精彩,给到客户一个又一个令其尖叫的惊喜,为什么会有这样的差距呢?

核心区别在于,你没有具备系统的方案思维,和正确的户型优化思路。耐心看完本篇文章,你一定有所收获。

这才是做户型优化的正确思路!

本篇文章从以下几个角度带大家分析:怎样才能做好户型优化?

1. 什么是户型优化?

2. 设计师做方案一定要有的方案思维

3. 户型优化的正确思路

这才是做户型优化的正确思路!

什么是户型优化?

户型优化,从字面意思上来解读,就是给当下的户型,有一个优化的改善,那为什么要做改善呢?

原因就在于当下的户型格局,和业主平时的生活居住需求有冲突有矛盾,还有空间户型本身存在的缺陷问题。

所以户型优化就是为了去解决这些矛盾和问题。并且从业主家庭成员的习惯,爱好,需求等等出发,创造更舒适更方便的户型格局。

这才是做户型优化的正确思路!

为什么很多设计师做出的方案,平平淡淡,毫无趣味?低级一点的比如像这样,直接就是在原始户型中,改了一小点地方,其他就是各种家具图块的拼凑。这个核心问题就在于没有搞清楚户型优化的本质是什么。

这才是做户型优化的正确思路!

或者有的设计师就是改动了户型,解决了一些户型缺陷的问题,并且也基本满足了每个空间的功能需求,但是却不出奇也不精彩,也就那样,一般般的感觉,对于户型优化来说,只是达到了刚及格的地步,基本解决了问题,但是不出彩

为什么不出彩呢?

比如你是否有挖掘到客户的隐形需求?是否有尺度舒适性的考虑?每个功能的动线是否更快捷方便等等········

而这些就和接下来要重点解析的方案思维有很大关系了。

这才是做户型优化的正确思路!

这才是做户型优化的正确思路!

这才是做户型优化的正确思路!

设计师做方案一定要有的方案思维

方案思维给人的感觉,好像又虚又很难掌握的感觉,其实不然,其实方案思维无非就是这些东西:

1 )尺度数据分析思维

大家都知道,做方案就是不断的在推敲尺度,所以,对于尺度数据的分析和把握是最重要的,它决定着空间的舒适程度,网上流传的很多家具的尺度,空间布局的尺度,人体自身的尺度等等五花八门,鱼龙混杂,也让很多人看的眼花缭乱,云里雾里的。

其实只要搞懂,尺度分析的核心是人,就足够了。

这才是做户型优化的正确思路!

换句话说,就是以人为本,从人体自身的尺度出发,人在空间中可能做的各种动作需要满足的尺度,或者几个人通行或者侧身需要的舒适的尺度,再以此为依据推出空间以及家具的尺度就迎刃而解了。

尺度数据不是死记硬背,而且通过自己得亲身体会和理解,灵活并且精准去运用的。

这才是做户型优化的正确思路!

2 )探索挖掘的思维

挖掘隐形需求空间设计的最终目的是让居住者住的舒适方便的体验,而这就要考验设计师探索和挖掘的思维和能力,解决户型缺陷问题只是一个小的方面,更重要的是去挖掘居住者的需求。

为什么那些优秀的设计师做出的方案,让客户惊喜连连,其中的奥义就在这里,他们了解客户,知道客户需要什么,甚至客户没有想到的,他们都考虑到了,不仅仅是要满足居住着的显性需求,还要挖掘潜在的隐形需求。

这才是做户型优化的正确思路!

那可能有人问了,隐形需求怎么挖掘?很多东西我想不到,其实这就是一个逻辑推理的关系,把现有的因素综合起来分析,比如家庭成员的情况,推理出未来可能预期的功能和需求,在设计中做好相应的准备和设置。

举个简单的例子,比如这房子是一对四十几岁的夫妇,家里有一个二十六岁的儿子,未婚,这栋房子是把原本家里两处房子都卖掉买了这个房子,单单从这条就可以看出,他们近几年经济实力不足以买新的房子,可能这套房子是留给儿子结婚用的,并且也要提前规划好以后儿童房的设计,这就是隐形需求。

这才是做户型优化的正确思路!

探索空间功能充分挖掘到客户的需求以后,对于空间功能的设计就十分清晰明了,居住者当然希望能在有限的空间里,能满足越多自己所需要的功能,这就要看设计师如何去挖掘和探索其真正的需求了。而不是干巴巴的卧室放张床,客厅放个沙发茶几这种普普通通的方案了。

这才是做户型优化的正确思路!

3 )观察思维平面方案不仅仅只是一个平面的布置,一定要从空间感三维的视角去观察和漫游这个空间,观察当下这个方案,是否合理,是否舒适,是否体验方便,是否美观。把自己代入到这个空间中,在做平面的时候,应该也要连带着做好立面和顶面的设计。

这才是做户型优化的正确思路!

这才是做户型优化的正确思路!

这才是做户型优化的正确思路!

户型优化的正确思路

想做好户型优化,做出优质的平面方案,一定要有一个系统且符合逻辑的思路来思考。

1 )前期阶段的分析

拿到一张户型图,别着急下手,首先对原始结构进行前期阶段的分析,主要分析几个内容

01. 熟悉空间中的管道位置,下水位置,烟道位置,还有整个户型的朝向,采光情况,哪里有横梁哪里有柱体,承重墙在哪里等等,对户型的结构做好一个基本的认识。

02. 揪出空间中原始户型存在的一些缺陷或不合理的地方。

03. 和客户沟通清楚,熟悉他们平时生活中的喜好,习惯,平时家里住几口人,做什么工作,老人和孩子的情况怎么样等等,就是聊天的过程中,把客户的情况都摸清楚。才能真正理解他们的设计需求和推理出潜在需求。

这才是做户型优化的正确思路!

04. 搞清楚原本户型中每个空间分别是什么样的功能

05. 找到确定性和冲突,根据现有的条件和需求,明确一些空间的位置,就是固定死的,动不了的,比如是否保留双卫,如果只留一个,留哪一个?以此类推,可以沿着两个方向展开,做出多种不同的方案出来。

另一方面,还要找出业主的生活需求和这个户型结构有冲突的地方,都是需要下手优化的。

这才是做户型优化的正确思路!

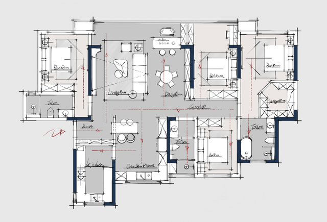
2 )空间区块划分

很多设计师做方案都会被现有的墙体禁锢束缚着,所以经过前期的分析阶段以后,接下来要做的,把户型结构全部打散,按照一定的逻辑和次序进行重新排布。

在布置规划的时候,要注意这些每个空间区块之间的面积比例是否均衡协调,并且各个区块之间的位置关系是否合理,以及每个区块的形态是否规整,采光和通风的效果如何,以及空间中的动线初步的安排和设置。

这才是做户型优化的正确思路!

这才是做户型优化的正确思路!

3 )动线规划

在确定好空间的区块划分后,再进行动线的规划和设计,在规划动线的时候,注意既短且方便的核心原则,其次注意动线设计的方法:

01. 划分好公私区域,动静区域。

02. 根据每个空间的功能属性和生活习惯,确定整个空间的主要动线,

03. 规划每个空间内部的次要动线

04. 一些必要的区域适当可以考虑设置洄游动线,优化空间体验和趣味感。

这才是做户型优化的正确思路!

这才是做户型优化的正确思路!

这才是做户型优化的正确思路!

4 )补充功能

在区块规划好,以及动线设计好之后,就是针对功能进行设计,要做好这些就足够了:01. 满足每个空间的基本功能02. 根据业主的需求,习惯,喜好,满足其个性化的功能

03. 在功能的尺度上要注意舒适度04. 注意功能使用的次序安排,一切围绕实际的体验感来进行设计,怎样方便怎样舒适来考虑,而不是一昧的追求所谓的形式感。

这才是做户型优化的正确思路!

设计师想要做出充满舒适感的户型优化方案

尺度是最最最基础的因素

要清楚家具尺寸,人体尺度,布局尺度

动线通行尺度、功能尺度、电气设备尺度等等

但是每一类展开都是一个庞大的数据体系如果设计师要全部记忆下来没有必要也不现实这时设计师需要有一本经过系统分类,可以随手速查的尺度手册来作为方案布局思考的辅助

转载请注明来自海坡下载,本文标题:《平面方案优化140(这才是做户型优化的正确思路)》

每一天,每一秒,你所做的决定都会改变你的人生!

发表评论

快捷回复:

评论列表 (暂无评论,20人围观)参与讨论

还没有评论,来说两句吧...