小公寓优化(29㎡小公寓)

小公寓优化(29㎡小公寓)

adminqwq 2025-11-26 信息披露 45 次浏览 0个评论
29㎡小公寓,空间利用绝了

一套29㎡公寓,一位年轻人希望打造一套高度优化、完美契合自身需求与期望的居住空间。

29㎡小公寓,空间利用绝了

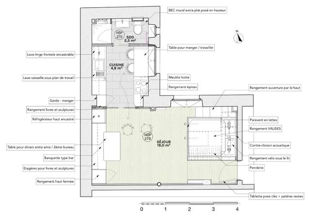
改造前:这套公寓呈角状布局,内部整洁,空间划分也比较合理,分为起居 / 厨房一体区和卧室 / 浴室一体区两个功能区。

29㎡小公寓,空间利用绝了

改造后:这套两居室公寓看起来宽敞得多,每一寸空间都能得到充分利用。

29㎡小公寓,空间利用绝了

改造前:人一进门便直接进入起居区,这里仅有一扇窗户,朝向一处小庭院。

29㎡小公寓,空间利用绝了

改造后:业主希望将视野最差的房间用作卧室,而让厨房享有公寓内最佳的视野。打造了一个位于垫高平台上的壁龛式床铺,床下方设有大量实用储物空间,确保公寓内不会有物品随意堆放。

29㎡小公寓,空间利用绝了

在确保入口处宽度符合要求的前提下,剩余空间刚好够放置一张垫高平台上的悬浮床以及床的通道。

29㎡小公寓,空间利用绝了

与设计自己的公寓时一样,夹层睡眠区的支撑结构采用实心橡木打造,用于遮挡起居区视线、避免看到床上人员的镂空屏风同样选用实心橡木。

在壁龛式睡眠区内部,床的一侧设有嵌入式搁板。其中一块搁板特意设计为无背板样式,从入口处望去能形成隐约的通透感,避免空间压抑。而与床架齐平的侧面台板则采用上翻式设计,翻开后内部设有电源插座,方便为移动设备充电并收纳设备。

29㎡小公寓,空间利用绝了

在高度为1.1米的垫高平台下方,设有三列深度 1 米的储物柜,供这位年轻人存放衣物。

29㎡小公寓,空间利用绝了

在入口区域,建筑师将夹层(睡眠区)设计成拱形延伸形态。天花板处的箱式结构同样暗藏大量储物空间。拱形结构的右侧,配电箱的外框被延伸设计成一个置瓶模块;其下方是一个三层翻板式鞋柜。

29㎡小公寓,空间利用绝了

业主选择用一组明快的黄蓝配色为整体空间增添活力,这个选择颇具巧思趣味。

29㎡小公寓,空间利用绝了

沙发被设计成与椅子齐高的高度。深度为40厘米的40厘米办公桌可以折叠成两张,用作餐桌。另外两处座位是办公室和厨房桌子,可以移动。

29㎡小公寓,空间利用绝了

在设有大量储物空间的长条软座下方,还暗藏着一个抽屉。这款带滚轮的软座可向外拉出并翻折,宽度能从 60 厘米扩展到 90 厘米,刚好达到临时床的尺寸,方便朋友留宿时使用。

29㎡小公寓,空间利用绝了

展开后的长条软座是业主最爱的观影角落 —— 他用投影仪将影片投射在一面特意留白的墙上。此外,他还添置了一张双人座软座(高度与餐椅齐平)和两张矮桌,方便邀请朋友来访。

29㎡小公寓,空间利用绝了

在厨房门的上方,能看到安装在天花板上的投影仪。

29㎡小公寓,空间利用绝了

29㎡小公寓,空间利用绝了

厨房采用走廊式布局,以确保使用效率。右侧安装了灶台与烤箱,窗边则设置了一张固定餐桌。

29㎡小公寓,空间利用绝了

业主更喜欢坐在这张实心橡木餐桌前办公 —— 这里正对着公寓内视野最好的方向。一道木质格栅屏风延续了卧室的 “视线缓冲” 设计理念,巧妙遮挡了灶台区域。

29㎡小公寓,空间利用绝了

厨房左侧的布局设计难度更大,原因是门框处紧贴着一根承重柱,柱子旁还立着一个通高的储物柜。水槽右侧的空间专门留给了洗衣机;而冰箱冰柜一体机则被安置在靠近客厅的一侧,与这排(厨房)柜体形成连贯的线条感。

29㎡小公寓,空间利用绝了

内容策划 / 设计游学

未经允许,请勿转载

转载请注明来自海坡下载,本文标题:《小公寓优化(29㎡小公寓)》

每一天,每一秒,你所做的决定都会改变你的人生!

发表评论

快捷回复:

评论列表 (暂无评论,45人围观)参与讨论

还没有评论,来说两句吧...