铝膜优化墙(采用铝模免抹灰工艺质量通病注意防治附图说明)

铝膜优化墙(采用铝模免抹灰工艺质量通病注意防治附图说明)

adminqwq 2025-11-21 社会资讯 415 次浏览 0个评论

铝模免抹灰工艺,由于省去了混凝土结构抹灰这一环节,对我们结构成型有较高要求,需对主体及装修阶段容易出现的一些质量通病进行防治。碧桂园工程管理中心结合工程案例,对较为普遍的27个质量通病原因进行分析,提出防治措施,有助于提升免抹灰工艺成型效果,值得工程朋友们参考实施。

采用铝模免抹灰工艺?质量通病注意防治!附图说明

铝模免抹灰施工应做到事前控制,对本文提到的包括结构及装修两个阶段共27个质量通病提前采取防治措施,对出现的质量问题,进行原因分析,提出解决方案,并形成文本输出及时对班组进行技术交底,杜绝后续施工出现同样问题。

采用铝模免抹灰工艺?质量通病注意防治!附图说明

免抹灰结构阶段质量通病防治通病01沉箱吊模反坎偏位

➤ 原因分析

吊模、反坎定位加固措施不足。

采用铝模免抹灰工艺?质量通病注意防治!附图说明

沉箱吊模偏位

采用铝模免抹灰工艺?质量通病注意防治!附图说明

卫生间反坎偏位

➤ 解决措施

采用EA角铝拉结等优化加固措施,螺杆采用三段式止水螺杆加固定位。

采用铝模免抹灰工艺?质量通病注意防治!附图说明

沉箱加固示意图

采用铝模免抹灰工艺?质量通病注意防治!附图说明

三段式螺杆定位加固

通病02上下层结构间出现错台

➤ 原因分析

在外墙、楼梯等部位,混凝土错台现象较为严重,严重影响到免抹灰成型效果。

采用铝模免抹灰工艺?质量通病注意防治!附图说明

外墙剪力墙错台

采用铝模免抹灰工艺?质量通病注意防治!附图说明

楼梯间墙体错位

➤ 解决措施

1、应严格按照深化设计的图集要求设置外墙K板、楼梯间K板、沉箱K板。

2、K板应独立固定于结构上,在拆除下部墙面板时候禁止扰动上部K板。

3、楼梯间上端必须使用EA角铁拉结模板,防止偏位。

采用铝模免抹灰工艺?质量通病注意防治!附图说明

外墙K板安装

采用铝模免抹灰工艺?质量通病注意防治!附图说明

EA角铁拉结模板

通病03下挂梁偏位

➤ 原因分析

下挂梁侧面无可靠支撑,浇筑时偏心受力导致偏位。

采用铝模免抹灰工艺?质量通病注意防治!附图说明

采用铝模免抹灰工艺?质量通病注意防治!附图说明

下挂梁偏位

➤ 解决措施

采用EA角铝螺栓连接下挂梁底部和楼面板的方式对下挂梁进行对拉斜撑加固。

采用铝模免抹灰工艺?质量通病注意防治!附图说明

采用铝模免抹灰工艺?质量通病注意防治!附图说明

下挂梁斜撑加固

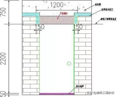
通病04下挂梁深化不到位致使交接处抹灰开裂

➤ 原因分析

1、下挂梁企口未深化。

2、下挂梁支座长度不足。

采用铝模免抹灰工艺?质量通病注意防治!附图说明

下挂梁未留置抹灰企口

采用铝模免抹灰工艺?质量通病注意防治!附图说明

砌体与混凝土交接处开裂

➤ 解决措施

1、下挂梁两端延伸150mm。

2、离墙端不大于600时拉通下挂梁。

3、下挂梁与砌筑交接处设置150宽的企口。

采用铝模免抹灰工艺?质量通病注意防治!附图说明

门头梁下挂示意图

采用铝模免抹灰工艺?质量通病注意防治!附图说明

下挂梁两端延伸150mm

通病05飘窗变形

➤ 原因分析

飘窗部位由于难以浇捣,在施工过程中,需要振动棒的长时间振捣才能保证飘窗部位的混凝土密实,致使飘窗面板往往受力较大,如果没有有效的加固措施,飘窗面板将出现严重胀模,进而导致飘窗顶板起拱。

采用铝模免抹灰工艺?质量通病注意防治!附图说明

飘窗上板起拱

采用铝模免抹灰工艺?质量通病注意防治!附图说明

飘窗台胀模

➤ 解决措施

1、模板内侧设置K板,上盖板设置钢背楞,增加抗浮能力,下模板与浇筑成型的飘窗板对撑。

2、飘窗模板沿短边方向配模,沿长边方向设置背楞,通过对拉螺栓将上盖板与下层浇筑成型的飘窗板拉结。

3、飘窗矮墙横向钢背楞与两端墙体拉通,设置@800的对拉螺杆防止胀模。

4、盖板上@600设置一个透气孔。

5、飘窗@1200设置竖向支撑,每个支撑头至少设置2根支撑立杆。

采用铝模免抹灰工艺?质量通病注意防治!附图说明

飘窗上下板拉撑体系

采用铝模免抹灰工艺?质量通病注意防治!附图说明

飘窗盖板抗浮背楞

采用铝模免抹灰工艺?质量通病注意防治!附图说明

飘窗上下板拉撑体系

采用铝模免抹灰工艺?质量通病注意防治!附图说明

飘窗盖板抗浮背楞

通病06楼梯企口漏设、尖角拆模困难

➤ 原因分析

1、图纸深化时楼梯未按要求设置抹灰企口,上下为砌筑墙体时无法挂网抹灰。

2、梯梁与梯板阴角未填平处理,影响铝模拆除和楼梯成型观感质量。

采用铝模免抹灰工艺?质量通病注意防治!附图说明

楼梯企口漏设

采用铝模免抹灰工艺?质量通病注意防治!附图说明

梯板与梯梁交接尖角不利于施工

➤ 解决措施

1、梯梁应按照铝模深化要求进行压槽预留企口。

2、铝模深化设计时将梯梁与梯板尖角填平接通处理。

采用铝模免抹灰工艺?质量通病注意防治!附图说明

楼梯上下均设置企口

采用铝模免抹灰工艺?质量通病注意防治!附图说明

楼板与梯梁交接尖角填平

通病07抹灰企口漏设,无法收口

➤ 原因分析

铝模深化设计时未对混泥土结构抹灰企口进行深化,导致无法抹灰收口。

采用铝模免抹灰工艺?质量通病注意防治!附图说明

墙体未设置抹灰企口

采用铝模免抹灰工艺?质量通病注意防治!附图说明

下挂梁未设置抹灰企口

➤ 解决措施

1、铝模深化设计时参照建筑图对抹灰企口深化。

2、预拼装验收及首层拆模后对企口全数检查整改。

采用铝模免抹灰工艺?质量通病注意防治!附图说明

设置抹灰企口

采用铝模免抹灰工艺?质量通病注意防治!附图说明

抹灰完成效果

通病08砌体规格不匹配致使免抹灰失败

➤ 原因分析

1、企口规格留置错误。

2、砌体尺寸未深化。

采用铝模免抹灰工艺?质量通病注意防治!附图说明

常规抹灰企口宽度不足15cm

采用铝模免抹灰工艺?质量通病注意防治!附图说明

砌体规格未按结构企口深度优化

➤ 解决措施

1、按要求设置企口,其中常规抹灰企口为150mmX10mm,专用砂浆薄抹灰企口为100mmX8mm,预制墙板免抹灰企口为50mmX5mm。

2、砌体规格结合抹灰工艺提前确定尺寸,提前采购备料。

采用铝模免抹灰工艺?质量通病注意防治!附图说明

常规抹灰企口节点大样

采用铝模免抹灰工艺?质量通病注意防治!附图说明

企口厚度=墙体厚度-抹灰厚度

通病09窗洞企口或窗垛漏设,无法收口

➤ 原因分析

铝模深化设计时未对窗企口和窗垛进行深化,导致无法收口或保温层吃框。

采用铝模免抹灰工艺?质量通病注意防治!附图说明

未设置企口至抹灰压框收口开裂

采用铝模免抹灰工艺?质量通病注意防治!附图说明

外窗无窗垛,致使保温材料吃框

➤ 解决措施

1、铝模深化设计时参照深化图集对各类窗型进行抹灰企口深化。

2、外飘窗应对两侧进行窗垛优化,避免保温层吃框。

采用铝模免抹灰工艺?质量通病注意防治!附图说明

深化窗企口

采用铝模免抹灰工艺?质量通病注意防治!附图说明

深化外窗窗垛

通病10窗企口深化尺寸错误

➤ 原因分析

1、企口尺寸未结合铝窗型材厚度调整,企口宽度过小致使窗框挡住滴水线。

2、企口宽度留设过大,窗框安装完成后,抹灰塞缝空间过大。

采用铝模免抹灰工艺?质量通病注意防治!附图说明

防火窗企口宽度不足

采用铝模免抹灰工艺?质量通病注意防治!附图说明

企口留设过大,塞缝空间较大

➤ 解决措施

在深化时针对不同型材厚度设置不同的企口宽度(50型材企口宽125;90型材企口宽150;100防火窗企口宽165)。

采用铝模免抹灰工艺?质量通病注意防治!附图说明

防火窗企口深化图

采用铝模免抹灰工艺?质量通病注意防治!附图说明

严格按照要求进行深化

通病11滴水线安装错误

➤ 原因分析

1、滴水线安装错位。

2、早拆头处没有安装滴水线,或者施工的时候错用无滴水线的早拆头。

采用铝模免抹灰工艺?质量通病注意防治!附图说明

滴水线安装错位

采用铝模免抹灰工艺?质量通病注意防治!附图说明

早拆头无滴水线

➤ 解决措施

1、试拼时重点检查窗洞模板、企口、滴水线是否齐全、顺直(外墙滴水线距饰面层2cm断开)。

2、做好企口、滴水线的铝模板编码,严格按照编码拼装。

采用铝模免抹灰工艺?质量通病注意防治!附图说明

加强预拼装验收管控

采用铝模免抹灰工艺?质量通病注意防治!附图说明

根据编码进行现场安装

通病12给水管压槽漏设或偏位变形

➤ 原因分析

1、铝模预拼装验收时未结合水电全面排查,漏设给水管压槽,后期打凿开槽,影响免抹灰效果。

2、给水管压槽未采用刚性材料一次压制成型,混凝土浇筑时偏位变形。

采用铝模免抹灰工艺?质量通病注意防治!附图说明

给水管压槽漏设,人工开凿

采用铝模免抹灰工艺?质量通病注意防治!附图说明

给水管安装槽偏位、变形

➤ 解决措施

1、预拼装验收和首层评估时全面校核水电,发现问题及时整改。

2、采用刚性一次压制成型材料,固定于铝模板上。

采用铝模免抹灰工艺?质量通病注意防治!附图说明

给水压槽设计

采用铝模免抹灰工艺?质量通病注意防治!附图说明

压槽一次成型

通病13水电点位偏位

➤ 原因分析

1、线盒外部没有可靠的固定措施,混凝土浇筑时偏位。

2、线盒内部无填充加固,混凝土浇筑时受挤压变形。

采用铝模免抹灰工艺?质量通病注意防治!附图说明

线盒偏位

采用铝模免抹灰工艺?质量通病注意防治!附图说明

线盒加固不到位

➤ 解决措施

1、制作井字型固定框架,线盒固定于框架内,框架满绑满扎或焊接于墙体钢筋上,固定牢固。

2、线盒内部使用填充物(如锯末)填充密实并压紧密封,多个线盒并行时应采用整体联排线盒。

采用铝模免抹灰工艺?质量通病注意防治!附图说明

线盒可靠固定

采用铝模免抹灰工艺?质量通病注意防治!附图说明

联排线盒内部填充锯末并压实

通病14墙体方正性控制较差,致使混凝土砌体交接处出现错台

➤ 原因分析

1、墙柱模板安装时与定位线偏差较大。

2、墙柱安装时未进行模板初调,后期校调难度大。

采用铝模免抹灰工艺?质量通病注意防治!附图说明

墙柱安装偏位

采用铝模免抹灰工艺?质量通病注意防治!附图说明

抹灰错台

➤ 解决措施

1、严格按照定位线进行安装,同时在梁板安装前进行初调并完成背楞、斜撑的加固。

2、在布设灰饼时应结合整面墙体(砌筑+剪力墙)的情况,进行墙体方正性进行微调。

采用铝模免抹灰工艺?质量通病注意防治!附图说明

加强初调检查

采用铝模免抹灰工艺?质量通病注意防治!附图说明

墙体方正性整体调校

通病15阴角不方正

➤ 原因分析

阴角加固方式错误。

采用铝模免抹灰工艺?质量通病注意防治!附图说明

阴角不方正

采用铝模免抹灰工艺?质量通病注意防治!附图说明

阴角加固方式错误

➤ 解决措施

1、转角墙长≤500设置定型转角背楞。

2、斜撑距墙端距离不大于600。

3、阳角采用草字头定位筋,阴角离墙角100设置定位筋,离地高度50~80。

采用铝模免抹灰工艺?质量通病注意防治!附图说明

阴角加固深化设计

采用铝模免抹灰工艺?质量通病注意防治!附图说明

背楞连续加固、斜撑满布

转载请注明来自海坡下载,本文标题:《铝膜优化墙(采用铝模免抹灰工艺质量通病注意防治附图说明)》

每一天,每一秒,你所做的决定都会改变你的人生!

发表评论

快捷回复:

评论列表 (暂无评论,415人围观)参与讨论

还没有评论,来说两句吧...