四叶草平面优化(138㎡经典四叶草户型的改造与优化)

四叶草平面优化(138㎡经典四叶草户型的改造与优化)

adminqwq 2025-11-17 社会资讯 453 次浏览 0个评论

"四叶草"户型一直以来是一个备受争议的户型!

所谓的"四叶草"户型,指的是四个卧室分布在四个角落的空间布局方式。

之所谓备受争议,是因为有的人觉得这样的布局,会让每个卧室之间的私密性大大加强,特别是家里人口较多的情况下,尤其是和父母一起住的家庭,"四叶草"能避免很多尴尬的情况。

但是也有的人觉得这种户型弊端很大。

因为布局的原因,这种户型很少能实现南北通透,而且如果只有双卫的情况下,必然会有一个卧室去公卫的动线特别长,最少需要3卫的设计,所以会导致每个空间都不会很大。

同时,"四叶草"户型的四角分布,必然导致有很多的门,对着餐厅区域,导致餐厅区功能混乱,往往都没有一个完整的餐厅区。

今天带给大家的是刘小姐家,138㎡比较经典的一款"四叶草"户型的改造与优化方案。

▶房屋信息

建筑面积:138㎡

原始布局:5室2厅3卫

改造布局:4室2厅3卫1书房

常住人口:夫妻、父母

▶屋主需求

①刘小姐家的房子,是作为婚房使用,小两口不喜欢看电视,都喜欢看书,所以希望家里多一些书架的设计,取消客厅老套的电视茶几布局。

②希望入户的地方有一个能洗手的地方。

③有一台宽1800mm的超大冰箱。

④三个卫生间都比较小,希望能做到干湿分离,特别是主卫,希望做到三分离的设计,早上使用的时候,互相能不打扰。

⑤保留4室的设计。

▶设计师户型分析

这套经典的"四叶草"户型,相对来说是非常不错的,比较方正,3个卫生间具备了"四叶草"的基本配置,但遗憾是都比较小,所以需要花点心思去做干湿分离的设计。

除了主卧,其他的三个房间都不大,需要酌情的去优化。

对于入户左手边的区域,有很大的优化空间,应该去设计一些不一样的东西出来。

本身COCO有一些较好的想法,想去掉一个卧室,做成横厅的效果,但是屋主坚持需求4室的布局,也只好作罢。

▶原始结构图

138㎡经典"四叶草"户型的改造与优化,值得收藏

通过结构图来看,承重墙较少,改造的空间还是比较大的,入户阳台花园可能是需要先做封闭处理,然后才能作为室内的一个空间来设计。

主卧的圆形布局,看似很有高大上的感觉,但是它的尺寸却很尬尴,对于床的摆放有着很大的挑战。

在刘小姐委托我之前,她在当地找了一家设计公司,做了一份平面的布局设计,并不是很满意,而且设计师很自我,完全不考虑她们的需求。

其实我觉得,对于户型的改造,首先要遵循的就是屋主的意愿,不能以设计师个人的意志来强加给客户,一个户型改造的好坏,也并不是他人能决定的,这完全取决于能不能满足屋主的需求。

下面,一起来看看当地设计公司的设计图。

▶原始平面布局图

138㎡经典"四叶草"户型的改造与优化,值得收藏

首先,屋主明确的表示不需求电视,却还是在客厅做了常规的电视布局。

入户需求的洗手区域也没有设计在内,尤其是玄关区的设计,草草了事,空间完全的浪费,也没有布局的美感。

同时,卫生间也没有做干湿分离。

对于这样的设计,不是COCO对其贬低,确实是没有走心。

这种的图纸不能称之为设计,只能说在里面摆家具而已,这样的操作,每个人都能做到,无非就是客厅放沙发,卧室放床而已。

就像前面说的,好的设计是需要满足屋主需求的,条件达不到,设计师就要对尺寸反复推敲,来达到屋主的需求,这才是改造的目的。

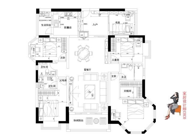
改造方案A:设玄关区,3个卫生间干湿分离

这套方案对于整体的布局来说,改动点较小,基本没有拆除墙体,这也是COCO在做设计的时候,第一套方案的常规手法,因为有的屋主可能不喜欢那么麻烦的改造,所以COCO就需要要在有限的条件内创造条件。

138㎡经典"四叶草"户型的改造与优化,值得收藏

设计说明:

①在入户区设计了一组鞋柜,满足出入的需求,同时在斜对面打造了一个洗手台区域,同时结合柜体的一体化设计。

②原书房的位置,取消了床的设计,改为可以休闲阅读的地方,同时增加了隐形床的设计,以后可以作为临时客房来使用。

③厨房做了U型的布局设计。

④餐厅区域做了超大的内嵌冰箱位,但是四叶草户型的缺陷性,让餐厅区域没有餐边柜,是个很大的遗憾。

⑤客卫和次卫做了洗手台外移的合并设计,实现了两个卫生间的干湿分离。

⑥客厅做了两面大大的书架,中间为沙发阅读区。

⑦主卧做了圆床的设计,并利用装饰柜做了床头的背景。

⑧利用原主卫较大的空间,结合主卧做了衣帽间和卫生间的干湿分离。

值得一提的是,主卧卫生间这一区域的设计,有很多的家庭都是这样的布局,因为没有充分的利用空间,从而导致,储物空间不足,生活不便捷,卫生间空间浪费的情况发生,在这里COCO做重点说明,是为了让同布局的房子,学习到这种改造的方法。

138㎡经典"四叶草"户型的改造与优化,值得收藏

通过前后的对比可以看出,卫生间和衣帽间的空间得到了更大化的利用。

原卫生间的布局,长度过小,但是宽度过于大,导致空间有些浪费的同时,还没有做到卫生间三分离设计,对于COCO来说,本身就不大的房子,浪费每一厘米都是不可取的。

而这种方法就是合理的利用了墙体的双面设计,增加了一面衣柜空间,同时还让洗手台独立分离了出来,让早上同时上班的小夫妻,能同时使用卫生间,而互不干扰。

方案改造B:增加餐边柜,圆床改方床138㎡经典"四叶草"户型的改造与优化,值得收藏

方案B是对A的另一种设想可能,对于餐厅而言没有餐边柜真的是很别扭的一件事情,往往会令餐厅比较凌乱。

于是就把洗手台这一组合的设计,整体移动到入户的对面的位置,把餐桌的方位调正90°以后,在餐厅的右侧就能摆放一组小的餐边柜。

同时,为了避免屋主不喜欢圆床的尴尬,还是保留的方床的摆放方式。

方案改造C:逆向思维,厨房改餐厅,多功能餐桌营造高级感138㎡经典"四叶草"户型的改造与优化,值得收藏

C方案是对入户这一区域做的较大调整,书房与餐厅区域调换,让餐厅处于一个较为完整的独立空间,多功能的餐桌,不仅可以吃饭,还可以作为洗手区,同时可以作为西厨空间使用,然后,厨房改变开门的方向,缩短动线。

原餐厅区域做了开放式书房的设计,同时增加了很多的储物空间。

方案改造D:双衣帽间的设计138㎡经典"四叶草"户型的改造与优化,值得收藏

D方案增加了次卧的面积,同时在内设计了一个衣帽间,这样就使得138平米的房子拥有了2个衣帽间的设计,同时由于次卧紧厨房,本身就属于不好太的位置,所以增加其空间,也算是一个形式的弥补。

总结

以上就是我对于这套户型的理解和设计,COCO觉得最后两套的方案是比较满意的,拥有一个独立的餐厅区域还是会给生活增加一些仪式感的,同时双衣帽间的设计也能大大提高房屋的实用性。

对于这几套方案,大家觉得哪套方案更好呢?欢迎评论区讨论您的看法。

“”

转载请注明来自海坡下载,本文标题:《四叶草平面优化(138㎡经典四叶草户型的改造与优化)》

每一天,每一秒,你所做的决定都会改变你的人生!

发表评论

快捷回复:

评论列表 (暂无评论,453人围观)参与讨论

还没有评论,来说两句吧...